Building Estimation and Costing: Complete Step-by-Step Guide
The estimation is the process of calculating different quantities and the expected expenditure to be incurred on the particular construction project. In the case that the funds for the construction project are available less than the estimated cost, the following procedures need to be followed:

1. Drawings should be prepared for the important points, for example, plans, elevations and sections.
2. Detailed specifications regarding workmanship and properties of the construction materials should also be prepared.
3. A standard schedule of rates of the current year should also be prepared.
Discuss the importance of estimation and costing in the construction project
➢ A proper estimation process of the construction project is necessary as it helps to provide an idea about the cost of the project work. The project feasibility can also be determined with the help of the estimation and costing process, which helps to determine whether the funds are available or not for that project.
➢ A proper estimation and costing process helps to provide an idea of the time that has been required for the successful completion of the entire construction project.
➢ Accurate estimation is also required for inviting the tenders and quotations to arrange contracts for the construction project.
➢ Accurate estimation and costing are also necessary to control expenditure during the execution of the construction project work.
➢ The estimation process also helps to decide if the proposed plans for the project match the available project funds or not.
Learn about the key items that work in the building estimation and costing process at the construction site
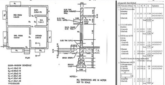
The building estimation and costing process has been prepared by doing mathematical calculations on the basis of the construction drawings, plans and item rates of the construction work. There are numerous items that are involved in the building estimation and costing process, which are as follows:
Earthwork
Earthwork refers to the excavation process that is carried out individually under separate quantities and items are estimated.
Concrete in the foundation
In this case, the breadth and length of the foundation concrete will be the same as for the excavation process. In this context, only the thickness or depth of the foundation varies. The foundation concrete has been determined by breadth x length x thickness in Cum.
Soiling work
In the case that the soiling layer is bad or soft, one layer of dry brick or stone soil has been filled beneath the concrete foundation.
Damp proof course
The damp proof course is the 1” thick or 2 cm thick cement mortar 1:2 or 2.5 cm cement concrete 1:1.5:3 that has been combined with the approved waterproofing materials. The damp proof course has been provided at the plinth level of the construction structure.
Masonry work
Masonry is the superstructure, in which standard bricks, including concrete bricks and lightweight bricks has been utilised. In the case of the multi-storey buildings, each floor's masonry has been calculated separately.
Lintels over openings
The lintels have been constructed in reinforced concrete. In this context, the length of the linter is equivalent to the two bearings width plus the clear span.
RCC work
The reinforced concrete work has been done in the roof, lintels, beams, foundations, floor slabs, columns and others. In this context, the quantities of the construction materials have been calculated in Cum and the concrete has been mixed by using concrete mix designs.
Flooring and roofing process
The base plain cement concrete and floor finishing of cement concrete or tiles, or marbles has been taken, and their quantity can be calculated in Sqm.
Plastering work
In the case of a brick wall, generally, 12mm thick plastering has been used. In this case, the plastering has been calculated in building estimation in Sq.m.
Doors and windows
The estimation for the doors and window frames has been done in Cu m. The length of the door and window frames has been obtained by adding the number of door and window frames.
Woodwork
The wooden frames, wooden beams, posts, wooden interior items, etc., have come under the woodwork, and the quantities of the woodwork have been calculated in Cum.
Ironwork
The ironwork in the construction project has been measured in kgs or MT by multiplying the weights per running meter. The calculation of the weight of nuts, bolts and rivets with heads has been done by counting their numbers, sizes, and using steel tables.
To learn more, watch the following video tutorial.
Video Source: Civiconcepts - Bhushan Mahajan
Whitewashing or colour washing process
The quantities of the whitewashing or colour washing materials have been measured in building estimation in sq. m. In this case, the quantities of these materials are the same as the quantities of paltering materials.
Doors and windows painting
The quantities of the door and window painting or varnishing materials have been measured in building estimation in Sq.m.


