
Quantity Takeoffs in Construction: A Comprehensive Guide

The quantity takeoff helps to determine the labour, materials and the costs for the specific construction project.
In addition, the quantity takeoff tools also enable the construction professionals to navigate the estimation-related complexities, project budgeting complexities and project planning-related complexities.
Different Types of Quantity Takeoff
Manual Quantity Takeoff Procedure
The manual quantity takeoff procedure is the traditional method, which involves the physical measurement process conducted by hand. In this case, any kind of specialised software or modern technology is not used. The manual quantity takeoff procedure includes the measurement of the areas, length, volume and the quantities of materials of the construction project. Simple arithmetic and mathematical formulas have been used in this kind of traditional quantity takeoff method.
Digital Quantity Takeoff Procedure
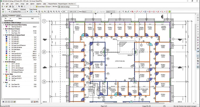
In the digital quantity takeoff procedure, modern technology and specialised software have been used to get the construction estimates. The digital quantity takeoff process has more accuracy and efficiency for obtaining the construction estimates. Through the digital quantity takeoff methods, the digital blueprints can be directly imported into the software, which helps to conduct the estimation procedure digitally and reduces the requirement for the manual data entry process.
Advantages of using Quantity Takeoff tools in construction projects
Save design time
The quantity takeoff tools help to get more accurate estimates, which are crucial to achieving success in the construction planning process. The quantity takeoff tools enable the project team member to meet the project deadline, thus helping to ensure that the construction project will be completed on time and within budget.
Improving collaboration
The collaboration among the project team members has been facilitated by the quantity takeoff tools by enabling the team members to access the important project documents, design models and project drawings. In addition, the project estimators are also able to improve the takeoff accuracy and transparency of the construction project with the help of the quantity takeoff tools.
Centralising the 2D and 3D quantity takeoffs
The quantity takeoff tools help to centralise the 2D and 3D takeoff solutions, which helps to provide clarification regarding the project budgets to the team members. This feature also allows the project team members to assess the project work and plan more accurately. Thus, the companies are able to manage the procurement activities of the construction project, as well as streamlining the production procedure of the construction project.
Minimising redundancies
The quantity takeoff tools help to maximise the measurement accuracy, which helps to streamline the takeoff procedures and enables the construction estimators to make better decisions for the construction project. Thus, the risk of project budget overrun has been reduced with the help of the quantity takeoff tools.
Discuss the Quantity Takeoff tools used for the construction project
Several quantity takeoff tools have been available, which enable the contractors to estimate the project budget on the basis of the client’s design requirements and the available drawings for the project. These quantity takeoff tools are as follows:
PlanSwift
PlanSwift software is appropriate for residential and commercial building construction projects. This quantity takeoff tool helps to create the project drawing in several formats, including TIF, PDF or DWG format. The digitalising features of this quantity takeoff software help to draw the polygons, areas or lines, which helps to estimate the volume, areas and length of the construction items.
ProEst
This is another construction estimating software which involved in civil works, making estimation for the plumbing works, account integration procedure and other purposes. Several pre-built templates have been offered by this takeoff tool, which can be customised by the users on the basis of their project requirements.
Esticom
Esticom is the on-screen quantity takeoff software, which is involved in the estimation of civil works. This is a cloud-based software application which is able to estimate the material quantities, as well as figure out the costs of the overall construction project more easily. With the help of this quantity takeoff software, the users are able to create an account on the website and can also manage the files from the dashboard.
Bluebeam
Bluebeam is another estimating software which is appropriate for preparing construction proposals. The design review feature of this quantity takeoff software enables users to review the project details and share project ideas at any time. The document management feature of this software enables users to place their files in one place and access those files at any time. In addition, the users are able to mark up the PDF files along with clouds, lines, symbols or images with just simple clicks, thus the users can get the estimates easily.
Square Takeoff
The Square Takeoff is a web-based quantity takeoff tool which has been widely used for the measurement of labour costs and material costs for construction projects. This takeoff tool can be used easily on the computer, mobile devices and tablets.
To learn more, watch the following video tutorial.
Video Source: Valario White
Download Quantity Takeoff Sheet
Through this tool, the project costs have been calculated on the basis of the materials required for the construction project, the labourers that are required for the construction project and the areas needed for the construction project.